FEUER FREI ! CAMPUSWACHE (FF!C)

BACHELOR PROJEKT / SS 2021 / LEITUNG / PROF. CLAUS ANDERHALTEN / MIT / DIPL.-ING. ANNA BALTSCHUN / DIPL.-ING. JENS ELBEL / FG ENTWERFEN IM BESTAND / FB ARCHITEKTUR, STADTPLANUNG, LANDSCHAFTPLANUNG / UNIversität KASSEL

 

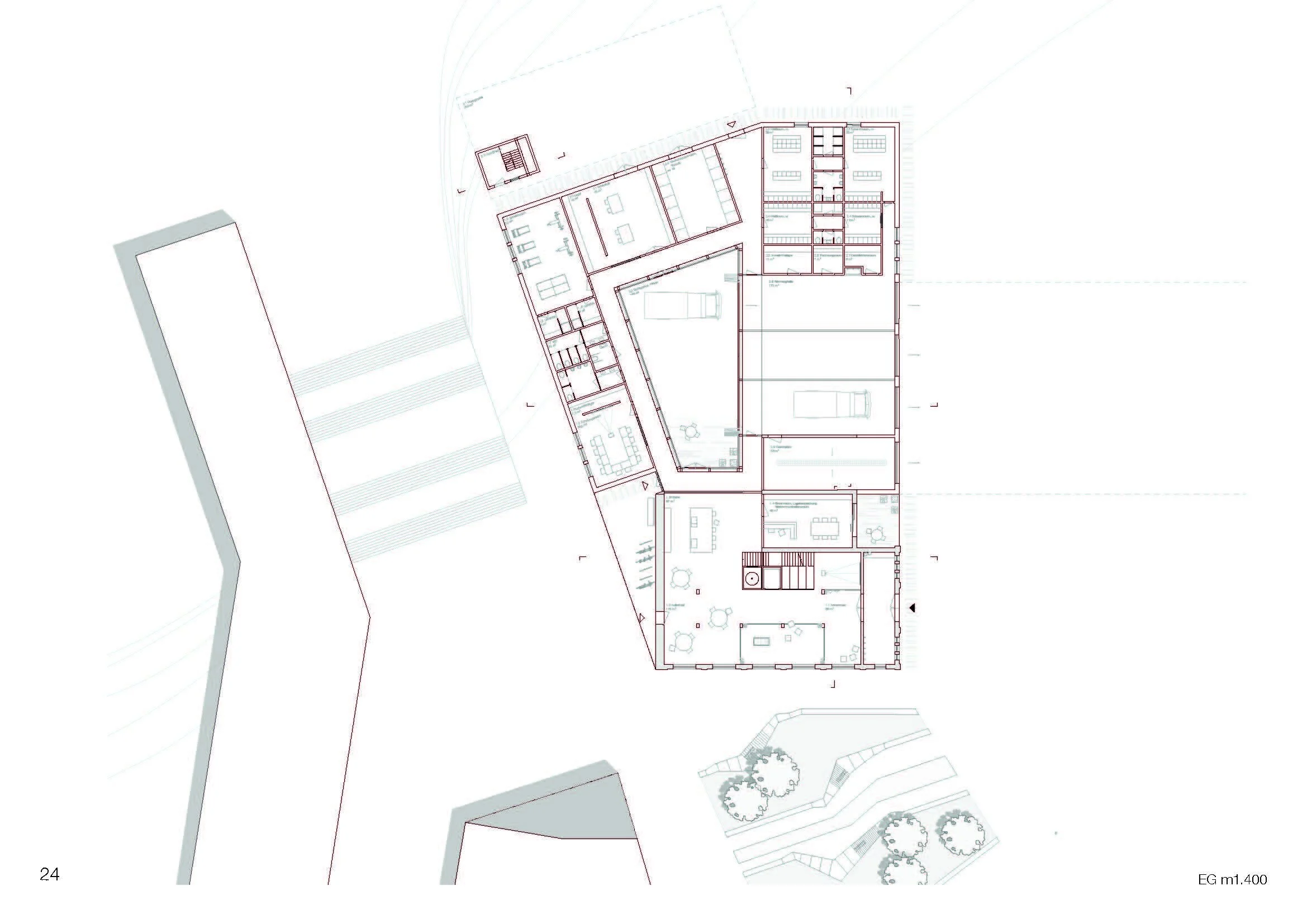
Wir setzen uns im Entwurf mit dem Bestandsgebäude „K19“ auf dem Uni-Campus auseinander. Ziel ist es, den Bestand intelligent mit einem neu zu entwickelnden Ergänzungsbau zu verknüpfen, um so Raum für eine neue, Uni zugehörige, Feuerwache zu schaffen. Neben der Integration der neuen Wache in den vorhandenen Master Plan für das Campus-Ensemble besteht die Herausforderung darin, die komplexen funktionalen Zusammenhänge einer Feuerwache zu lösen und ein Gebäude mit Signalwirkung zu entwerfen. Die neue Wache soll über sämtliche, für eine Feuerwache charakteristische, Funktionsbereiche verfügen, wie zum Beispiel einen Schlauchturm, Fahrzeughallen, Rutschstangen, oder „Schwarz-“ und „Weißbereiche“, um nur einige zu benennen.

Die Patio Feuerwache (FF!C)

Von Michelle Gartung und Mira Irmer

Im Prozess der Konzeptentwicklung wurde die Setzung in der Umgebung und die städtebauliche Ordnung analysiert und interpretiert. Der Entwurf als städtebauliches Ensemble, die Schnittstelle zum Campus, die direkte Anbindung an die Moritzstraße und die Position des Übungsturmes mit dem anschließendem Übungsplatz stehen bei der Konzeptfindung im Mittelpunkt. Zunächst wurde mit den benötigten Flächen in unterschiedlichen Varianten die Setzung des Neubaus überprüft. In weiteren Schritten wurden sich Gedanken über die Ausrichtung, die Erschließung und die Verbindung zwischen alt und neu gemacht. Ebenfalls wurde mit Hilfe von Modellen überprüft, ob der ergänzende Neubau vor, hinter oder auf gleicher Höhe der Giebelwand des K19 weitergeführt wird. Dem respektvollen Umgang mit dem Bestand und der gleichzeitigen Signalwirkung nach außen wurde besondere Wichtigkeit zugeschrieben.

Von Michelle Gartung und Mira Irmer